ESTATE土地/建売住宅
見学・購入予約受付中
【中古住宅】 福井市八ツ島1丁目 [仲介]
物件概要
えちぜん鉄道 八ツ島駅まで 徒歩2分
バロー新田塚店まで 徒歩5分
日新小まで 徒歩13分、藤島中まで 徒歩10分


住居写真
主な住宅設備
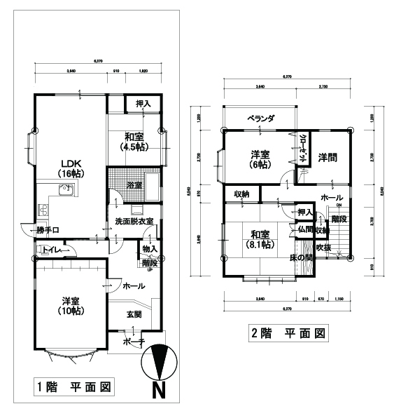
面積詳細
| 敷地面積 | 165.39㎡ / 50.03坪 |
|---|---|
| 施工面積 | 122.31㎡ / 36.99坪 |
物件詳細情報
| 販売価格 | 1,680万円(税込) |
|---|---|
| 所在地 | 福井市八ツ島1丁目 |
| 建築年月 | 1992年12月新築(築32年10ヶ月) |
| 敷地面積 | 165.39㎡ / 50.03坪 |
| 施工面積 | 122.31㎡ / 36.99坪 |
| 構造 | 木造 / 2階建て / ストレート屋根 |
| 地目 | 畑 ※要 地目変更 |
| 現況 | 宅地 |
| 権利 | 所有権 |
| 接道 | 種別:行動 方角:北 幅員:6.0m 接道:8.38m |
| 設備 | 上水道:引込あり 下水道:引込あり※現況浄化槽利用 ガス:個別プロパン 電気:北陸電力 |
| 公法上の制限 | 用途地域:第一種住居 建ぺい率:60% 容積率:200% 防火指定:22条区域 |
| 学校区 | 日新小学校 藤島中学校 |
| 取引形態 | 仲介 |
アクセスマップ
詳しくはリョーエンホームまでお気軽にお問い合わせください。

